Edifício à venda – Tietê Studios – Voluntários da Pátria 550

INFORMAÇÕES SOBRE Edifício à venda – Tietê Studios – Voluntários da Pátria 550

Sobre o imóvel
Edifício residencial à venda em fase de finalização da construção. O imóvel de 12 andares está localizado no cruzamento entre as ruas Voluntários da Pátria e Marechal Odylio Denys, em Santana. Trata-se de uma região comercial que conta com grande fluxo de pessoas por ser próxima à estação Portuguesa – Tietê do Metrô. E é justamente este o diferencial do imóvel: Está localizado anexo e com acesso direto à estação de Metrô.

 

Ref. IM#05045

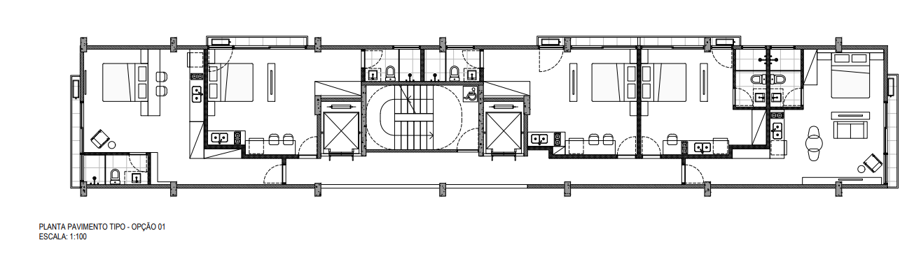
Andares
12 + cobertura + lojas

Flats
60 – 5 por andar

Ano da construção
2020

Localização
Rua Voluntários da Pátria, 550 – Anexo ao metrô Tietê
Ao lado da galeria ConVem que conta com lojas como Burger King, Lojas Americanas, Farmais, Rei do Mate, Quero Fruta, praça de alimentação e diversas outras lojas.

Área de terreno
440 m²

Área útil flats
153,9 m² por andar, sendo:
Final 01 – 35,20 m²
Final 02 – 29,60 m²
Final 03 – 29,30 m²
Final 04 – 24,70 m²
Final 05 – 35,10 m²

Área útil 5 lojas do térreo
253,70 m² (total)

Área útil total
2.100,70 m²

Comercialização
Exclusividade Patrinvest

 

Para informações de valores e visitas ao imóvel, entre em contato por telefone ou cadastre-se no formulário abaixo.

(11) 3101.6119

Preencha o formulário








 

FOTOS DO TIETÊ STUDIOS

 

PLANTAS

Clique para ampliar plantas

 

LOCALIZAÇÃO

Google Maps

Street View

ENTORNO

Imóvel localizado ao lado da galeria Convem, conta com infraestrutura completa de alimentação, lazer e compras. Acesso direto à estação de metrô Portuguesa – Tietê e ao terminal rodoviário.

ENTRE EM CONTATO
Para saber detalhes sobre o Edifício à venda – Tietê Studios – Voluntários da Pátria 550, preencha o formulário abaixo ou ligue (11) 3101.6119









 

 

CONTEÚDO RELACIONADO


 

 

 

  • Faturamento x custo de locação. Qual a melhor proporção?
    O custo de locação (aluguel + encargos) é uma das despesas fixas que mais pressionam a margem de qualquer operação. Uma forma simples de monitorar esse peso é o “rent‑to‑revenue ratio  / occupancy cost percentage” (ou relação Aluguel x Receita), que mostra que fatia da receita líquida é consumida pelo imóvel. O “número certo” varia conforme setor, margens e modelo de negócio, mas […]
  • Imóveis Comerciais em São Paulo: Encontre a Solução Ideal para seu Negócio
    Encontrar imóveis comerciais em São Paulo adequados à operação da empresa é uma estratégia fundamental para quem deseja expandir seus negócios, estabelecer uma presença sólida ou até mesmo iniciar suas operações na maior cidade do Brasil. Contar com o suporte de profissionais especializados e imóveis de qualidade faz toda a diferença para garantir um investimento bem-sucedido. Confira tudo o que […]
  • Investir em imóveis residenciais ou comerciais
    Investir em imóveis residenciais ou comerciais Investir em imóveis residenciais e comerciais pode ser bastante diferente em vários aspectos. Aqui estão as principais diferenças entre esses dois tipos de imóveis em termos de investimento: Tipo de Inquilino: Imóveis Residenciais: Os inquilinos são geralmente famílias ou indivíduos que procuram um lugar para viver. A demanda é mais estável, mas pode […]
  • Terminologias do mercado imobiliário
    Termos do mercado imobiliário FII (Fundo de Investimento Imobiliário) Listado: É um tipo de investimento em imóveis, como prédios, shoppings, escritórios, etc. Esses FIIs são negociados na bolsa de valores, como se fossem ações de empresas. Isso significa que as pessoas podem comprar e vender cotas desses FIIs, como se fossem ações. FII (Fundo de Investimento Imobiliário) Não Listado: Também é um […]
  • Avenida Engenheiro Luís Carlos Berrini: História, Características e Importância
    Avenida Engenheiro Luís Carlos Berrini: História, Características e Importância A Avenida Engenheiro Luís Carlos Berrini é um dos principais eixos financeiros e corporativos de São Paulo, conhecida por abrigar grandes empresas, edifícios modernos e um ambiente de negócios dinâmico. Abaixo, detalho sua origem, características, aspectos culturais e econômicos, além de informações sobre valorização […]
  • Relação dos maiores prédios da cidade de São Paulo
    Relação dos maiores prédios da cidade de São Paulo A cidade de São Paulo é conhecida por sua skyline impressionante, repleta de arranha-céus que refletem seu poder econômico, diversidade arquitetônica e desenvolvimento urbano. A relação entre os maiores prédios da cidade vai além da altura e do número de andares; envolve aspectos como localização, uso, arquitetura, sustentabilidade e impacto no […]
  • Mercado de escritórios em São Paulo mantém recuperação e segue aquecido em 2025
    Mercado de escritórios em São Paulo mantém recuperação e segue aquecido em 2025 Em 2025, o mercado de lajes corporativas em São Paulo apresenta tendência promissora, refletindo a recuperação econômica e a crescente demanda por espaços de alto padrão. A taxa de vacância em edifícios “triple A”, por exemplo, caiu para menos de 10% no primeiro semestre de 2024 enquanto o setor de escritórios […]
  • Real estate por elas
    Real estate por elas: A visão feminina do mercado imobiliário corporativo A Patrinvest realizou uma série de entrevistas com pessoas do mercado imobiliário corporativo. Na primeira temporada falaremos sobre desafios e perspectivas sob o ponto de vista de mulheres que são, para nós, referências neste mercado. Conversamos com executivas como Fernanda Mustacchi (Mustacchi Advogados), Letícia Tiboni […]
  • Leis de incentivo ao desenvolvimento imobiliário em São Paulo
    Como em toda grande metrópole, a estrutura da cidade de São Paulo é cercada de alta complexidade quando o assunto é desenvolvimento imobiliário urbano. Apesar de parecer que a estrutura foi concebida de forma desordenada, e de fato em parte foi, dada a grande quantidade de labirintos de ruas e avenidas que parecem não ligar nada a lugar nenhum e construções que estão onde aparentemente não […]
  • Qual o ciclo de vida de um imóvel corporativo para renda e como manter a receita atualizada?
    O objetivo desta série de vídeos é responder as seguintes perguntas: “Qual o ciclo de vida de um imóvel corporativo ou comercial do ponto de vista da geração de renda e como fazer para manter seu investimento gerando receita atualizada?” […]
  • A importância da exclusividade
      Por que a venda de imóveis corporativos tem que ser com exclusividade? Imagina que você tenha um milhão de dólares e desejar fazer um investimento, para quem pediria sugestões? A um especialista da área ou a qualquer pessoa que se apresente dizendo que sabe tudo de mercado financeiro? […]
  • Desenvolvimento imobiliário: Alavancando a venda de seu imóvel
    A Patrinvest traz a você uma série de vídeos que tratam da importância do relacionamento entre vendedores e intermediadores para a qualificação e correta atribuição de valor ao imóvel. Neste primeiro vídeo com apresentação da jornalista Stefanie Chasseraux, falamos um pouco sobre o processo para transformação de um imóvel ou terreno à venda em área para desenvolvimento imobiliário a fim de […]
  • Como identificar os melhores imóveis para expansão de redes de varejo?
    Como identificar os pontos adequados, em excelentes localizações e com o melhor custo x benefício para expansão de redes de varejo? Para responder essa pergunta, a Patrinvest já adianta: é preciso fugir do óbvio. Imóveis forrados com placas de “aluga-se” e disputados por corretores não são as melhores opções. É preciso analisar o imóvel no momento anterior, enquanto ocupado por outro inquilino. A […]
  • Investir em imóveis comerciais
    Com a economia brasileira estagnada, diversos setores perderam suas perspectivas imediatas de crescimento. Para o mercado imobiliário corporativo, a situação não é diferente. Porém, há indícios, sinalizados por aquisições realizadas por grandes grupos de investidores, de que o ano de 2017 será de crescimento para este mercado. […]
  • Renegociação de locação para imóveis comerciais
      A renegociação dos contratos de locação para imóveis comerciais tem como objetivo adequá-los à realidade econômica do país, permitindo a grandes locatários um melhor retorno de suas operações no imóvel e, aos proprietários, garantir a manutenção da rentabilidade dos investimentos imobiliários ao promover a permanência dos inquilinos no imóvel. […]
  • Como manter o locatário no imóvel?
    Dando continuidade na série de vídeos que tratou do tema “como minimizar os riscos do seu investimento imobiliário”, cujo primeiro assunto tratou das formas de se encontrar um inquilino ideal, agora será tratado sobre manter o locatário no imóvel e trazer maior rentabilidade ao seu negócio. Confira a parte 1 clicando aqui.    Senso de parceria   Para manter o locatário […]
  • Meu imóvel está vazio. Como encontrar um locatário?
      A Patrinvest está produzindo uma série de vídeos com o objetivo de fornecer dicas para minimizar os riscos de um investimento imobiliário.   Este vídeo tem como tema a busca pelo melhor locatário.   No vídeo anterior comparamos investimentos imobiliários x investimentos financeiros, vantagens e idiossincrasias de cada investimento. A constatação é que se o seu intuito é viver de […]
  • Investir no mercado imobiliário
     Investir no mercado imobiliário corporativo sempre proporciona grande rentabilidade.   Investir no mercado imobiliário corporativo é sempre uma grande alternativa para quem deseja obter bons rendimentos proporcionados pelos ganhos com locação que podem chegar a 11,5% ao ano + o reajuste do IGP-M. O mercado imobiliário corporativo, especialidade da Patrinvest, traz ainda melhores […]

Newsletter Patrinvest

Para ficar por dentro das novidades do mercado imobiliário corporativo, assine nossa newsletter e receba, periodicamente, ofertas de imóveis e notícias relacionadas. newsletter

    Nome*

    E-mail*

    Telefone – +55 (11) número

    Assunto de interesse
    LocaçãoVendaInvestimento

    Lajes corporativasPrédios monousuáriosPrédios multiocupantesImóveis comerciaisGalpões industriaisÁreas para desenvolvimento

    Excluir página
    O imóvel em questão é uma referência regional para empreendedores que buscam imóveis ao seu redor. O objetivo desta publicação é proporcionar uma melhor ocupação dos imóveis do entorno. Porém, se necessário, preencha o formulário a seguir que excluiremos o conteúdo.

      Nome

      E-mail

      Motivo

       
      Palavras-chave

      Alugar prédio Alugar prédio inteiro Andar à venda Andar com renda Andar locado Andar alugado a venda Aplicação em imóveis Aplicação em imóvel Aplicação financeira em imóvel Área para desenvolvimento Área para desenvolvimento Áreas industriais Áreas industriais a venda Barracão alugado Barracão para investimento Built to suit Comercial a venda Como alugar um imóvel comercial Comprar imóveis em são paulo Comprar imóvel com renda Comprar imóvel comercial Comprar imóvel para investimento Comprar prédio Comprar prédio inteiro Comprar prédio monousuário Comprar prédios Compro imóvel com renda Conjunto comercial locado Construção com renda Corretor imóveis comerciais Corretor imóvel comercial Corretor imóvel corporativo Desenvolvimento imobiliário Edifício comercial à venda Edifício corporativo Escritório para investimento Escritórios locados Galpão à venda Galpão alugado Galpão com renda Galpão com renda a venda Galpão para comercialização Galpão industrial à venda Galpão industrial alugado Galpão industrial com renda Galpão industrial com rentabilidade Galpão industrial em SP Galpão locado Galpão para investimento Galpões a venda Galpões com renda Galpões locados Galpões para investimento Gestão de imóveis Imobiliária imóvel comercial Imobiliária imóvel corporativo Imobiliárias imóveis comerciais Imobiliárias imóvel comercial com renda Imobiliárias imóveis comerciais Imóvel comercial na região Imóveis corporativos em São Paulo Imóveis com renda a venda Imóveis comerciais Imóveis comerciais para locação Imóveis comerciais em São Paulo Imóveis comerciais para investimento Imóveis corporativos em São Paulo Imóveis corporativos em SP Imóveis corporativos para investimento Imóveis corporativos SP Imóveis investimento Imóveis para investimento Imóveis para investir Imóveis prédio alugado renda Imóvel alugado com renda Imóvel com renda Imóvel com renda a venda Imóvel com renda em São Paulo Imóvel com renda na região Imóvel com rentabilidade Imóvel comercial Imóvel comercial locação Imóvel comercial para alugar Imóvel comercial para alugar em SP Imóvel comercial para locação Imóvel comercial para locação em São Paulo Imóvel corporativo Imóvel corporativo com renda Imóvel corporativo em São Paulo Imóvel corporativo para investimento Imóvel em São Paulo Imóvel investimento Imóvel locado Imóvel comercial locado Imóvel locado com renda Imóvel corporativo Imóvel na região Imóvel para investimento Imóvel para investimento na região Imóvel para investir Imóvel rentável Imóvel rentável a venda Imóvel rentável na região Investir em prédio Investidores imobiliários Investimento em galpão Investimento em galpão industrial Investimento em imóveis Investimento em imóveis industriais Investimento em imóveis comerciais Investimento em lajes corporativas Investimento em imóveis corporativos Investimento em imóvel Investimento em imóvel comercial Investimento em imóvel na região Investimento em imóvel corporativo Investimento em imóvel para indústria Investimento em indústria Investimento em laje alugada Investimento em laje corporativa Investimento em prédio Investimento em imóvel com renda Investimento em SP com renda Investimento imobiliário Investimento imóveis 2017 Investir em galpão Investir em galpão industrial Investir em galpões Investir em imóveis Investir em imóveis comerciais Investir em imóveis corporativos Investir em imóvel comercial Investir em imóvel corporativo Investir em laje alugada Investir em laje corporativa Investir em lajes corporativas Investir em prédio Investir em prédios Investir em imóveis na região Laje a venda na zona sul Laje corporativa a venda Laje corporativa para investimento Laje corporativa em São Paulo Laje corporativa São Paulo Laje corporativa locada Laje corporativa na região Laje corporativa em SP Laje corporativa SP Laje em São Paulo Laje para locação Lajes corporativas locadas Locação de galpão Locação de galpões em São Paulo Locação de imóvel comercial Locação de imóvel comercial em São Paulo Locação de laje Locação de prédio Locação de prédio na região Monousuário a venda Monousuário locado Prédio à venda com renda Prédio a venda em São Paulo Prédio a venda São Paulo Prédio a venda na região Prédio alugado Prédio com renda Prédio com renda São Paulo Prédio comercial Prédio comercial a venda SP Prédio corporativo Prédio em avenida Prédio São Paulo Prédio investimento Prédio locado Prédio monousuário à venda Prédio monousuário em São Paulo Prédio monousuário em SP Prédio monousuário Prédio monousuário locado Prédio monousuário na região Prédio monousuário São Paulo Prédio monousuário para locação Prédio na região Prédio para investimento Prédio para locação Prédio único ocupante Procuro imóvel comercial Sale & leaseback Sale and leaseback Terrenos industriais Terrenos industriais SP Terrenos para edifícios Terrenos para indústria Único ocupante a venda Venda de área para desenvolvimento Venda de galpão Venda de galpão em São Paulo Venda de galpão em SP Venda de imóveis corporativos Venda de imóveis em SP Venda de prédio Venda de prédio em São Paulo Venda de prédios Venda de laje corporativa Vende-se salão comercial imobiliárias imóvel comercial galpões locados areas industriais a venda imovel corporativo procuro imóveis com renda áreas industriais galpao industrial alugado compro imovel com renda investidor para imóvel galpao à venda aplicação em imóvel comprar predio escritório para investimento alugar predio imóveis para investir imovel comercial para locação imóveis corporativos em São Paulo administração de contratos aluguel reduzir aluguel varejo imoveis para investimento encontrar investimento investimento em imoveis corporativos galpão para alugar corretor imóveis comerciais comprar imóvel comercial prédio monousuário locado Sale and Lease back no Brasil alugar imovel comercial investidores patrimonialistas área para desenvolvimento investindo em imoveis imoveis para investimento encontrar investidores contrato varejista imoveis para investimentos desenvolvimento imobiliário lajes corporativas a venda galpão para investimento expansão para varejo sale and leaseback definição family office originacao de negocios areas industriais contrato de aluguel comercial sale and leaseback property imóvel rentável vantagens do Sale & Leaseback Sale & Lease back Brasil galpao para locação imovel para investir contrato de locação imóveis corporativos para investimento locacao de imovel comercial imóveis corporativos prédio para investimento locação de imóvel comercial renegociacao locacao varejo Sale and Leaseback imobiliarias imoveis comerciais comprar imóvel com renda gestão contrato imóveis comerciais para investimento construção com renda galpão industrial em São Paulo imoveis corporativos sp imobiliárias imóvel comercial prédio comercial investir em imóveis imóvel corporativo em São Paulo imóvel comercial para locação corretor imóvel comercial imoveis corporativos financeiro imobiliário empresa renegocia contrato investidor Sao Paulo aluguel redes de varejo imoveis com renda a venda imobiliária imóvel comercial laje corporativa alugar comprar imóvel para investimento imóvel para investir Laje corporativa SP escritório com renda como fazer um contrato de aluguel comercial investir em imóveis comerciais imobiliaria imovel comercial imóveis comerciais em SP investimento em incorporação aplicação em imovel imoveis corporativos com renda terrenos para industria investimento em imoveis terreno industrial na zona leste originação de negócios investidor mercado imobiliário imóvel corporativo para investimento imovel locado andar com renda galpão à venda renegociar locação varejo andar a venda investir em imoveis corporativos contrato rede varejo diminuir aluguel varejo imóvel corporativo em São Paulo contrato aluguel comercial imóvel comercial locação galpão industrial alugado Sale and Leaseback no Brasil andar para alugar terrenos industriais investir em galpões investimento em imóveis comerciais rescisão de contrato de locação comercial pelo locador edifício comercial lajes corporativas locadas Sale and Leaseback Brasil expandir rede de varejo investimento em laje corporativa imovel para investimento imóvel investimentos investir em imoveis comerciais investidores incorporadores terreno industrial venda de laje imovel comercial para investimento prédio unico ocupante imovel comercial para alugar imóveis comerciais imóveis para investimento comprar imóveis em são paulo prédios unico ocupante imobiliária imóvel comercial incorporacao vende se salão comercial family offices investidores em SP investimento em imóvel imobiliarias imovel comercial aplicação em imóvel repactuação de contratos de locação barracão com renda venda de prédio vantagens do Sale and Leaseback imóvel para investimento em São Paulo investir em laje alugada melhor região lajes corporativas comprar imovel com renda predio investimento Laje corporativa em São Paulo especialista contrato locação corporativa renegociação aluguel varejo reduzir locação varejo financeiro imobiliario Sale and Lease back investimento imobiliario conjunto comercial locado imóveis comerciais em São Paulo laje com renda imóveis comerciais em SP investimento imobiliario imoveis comerciais investir em galpao imóveis corporativos com renda avaliação imobiliária predio para investimento investidor incorporador aplicação em imóveis único ocupante a venda Laje corporativa São Paulo imóvel para investimento em SP imovel comercial para investir galpao para alugar expansão para redes de varejo administração de contrato locação rede varejista galpões industriais para investimento galpão alugado investir em imovel comercial investir no mercado financeiro sale leaseback sp galpão industrial à venda investidores em Sao Paulo aplicação em imoveis Sale & Lease back edifício corporativo galpão locado galpao para investimento como alugar um imovel comercial galpão com renda locacao de prédio investimento imoveis 2017 alugar andar galpao industrial à venda rescisão de contrato de locação pelo locador desenvolvimento imobiliário venda de predio alugar monousuário laje corporativa à venda predio corporativo andar à venda galpão industrial em SP quebra de contrato de aluguel Sale & leaseback investidor em São Paulo aplicação em imóveis terrenos para edificios predio comercial imovel comercial para investimento area para desenvolvimento laje corporativa locação imóvel para investimento imoveis com renda imovel corporativo investidor imobiliário comprar imóvel comercial investidor para prédio investir em imóvel em São Paulo investimento em imovel comercial incorporação imóveis com renda Sale & Lease back no Brasil renegociacao locação varejo locação redes de varejo aluguel comercio varejista administradora de contratos de locação imóvel corporativo em SP edificio comercial contrato de aluguel de sala comercial imoveis para rede de varejo representação contrato aluguel imóvel corporativo buscar investidor galpoes a venda aluguel lajes corporativas para locação aluguel varejo investidores imobiliários imovel investimento corretor imóvel corporativo investir em galpão prédio comercial para investir lajes corporativas para alugar imóveis para redes de varejo imóvel corporativo em SP imoveis corporativos para investimentoinvestir em imovel imovel corporativo em São Paulo investir em imóvel comercial investir em imóvel comercial galpão para investimento Sale & Leaseback Brasil galpão industrial com renda imóvel para investir predios desenvolvedor imobiliario alugar galpão imovel locado com renda galpao com renda investimento em galpão carta de rescisão de contrato de aluguel comercial área para desenvolvimento imovel para investir galpão industrial locação alugar prédio galpão alugar investimento em laje imovel para investimento imóvel locado investir em predios imóvel comercial para investir corretor imóvel comercial alugar laje corporativa imobiliarias imoveis comerciais investimento em imóveis prédio locado especialista contrato locação varejo imóvel investimentos investimento em lajes corporativas prédio corporativo investimento em desenvolvimento imobiliario imovel corporativo para investimento investir em prédio imóvel alugado com renda investir em imovel comercial imovel investimento melhor investimento financeiroimovel para investimento gestão contrato locação galpao a venda sp imóvel para investir em SP investimento em imoveis comerciais galpao locação investidores São Paulo investimento em galpao vende se salão comercial galpões industriais para locação investidor em SP barracão alugado investidores imobiliarios alugar prédio investir em imóvel em SP investir em imóvel andar locado investimentos lucrativos escritórios locados galpão industrial locado galpao a venda galpao industrial locado vocacao imobiliaria procuro socio investidor em sp imoveis para investir rescisão de contrato de aluguel Sale and Lease back Brasil predio a venda investidores em São Paulo contrato varejo investimento em imovel aluguel rede de varejo imóvel comercial para investimento galpao alugado investimento em laje alugada investimento em industria comprar imovel comercial investimento em imóveis imóveis comerciais locação Sale & Leaseback no Brasil laje corporativa locada family offices brasileiros imobiliaria imovel comercial imóvel para investimento especialista contrato locação comercial expansao imobiliaria locação de prédio imoveis para investimentos imóvel comercial para alugar galpao locado imóvel comercial investidor São Paulo laje para linvestimento imóvel comercial para alugar imovel comercial para locação aluguel de laje corporativa barracão para investimento investir em predio investimento em imóvel investir em imóveis comerciais sale leaseback real estate investir em imóvel galpao locacao sp imóvel para investimento onde alugar lajes corporativas imovel com renda administradora de contratos aluguel galpao industrial com renda administração de contratos de locação renegociar aluguel varejo investir em imóveis administração de contrato locação corporativa buscar investimento Expansão imobiliária monousuário a venda mercado financeiro imobiliário contrato locação comercial predio para locação imóvel com renda investir em imoveis para alugar como alugar um imovel comercial predio monousuario locado locacao de imovel comercial investir em imoveis comerciais imóvel corporativo em São Paulo locação de imóvel comercial prédio venda alugar imóveis comerciais imóveis prédio alugado renda andar locado investimento em imóveis corporativos imoveis para investir sale leaseback são paulo imobiliárias imóveis comerciais administração de contrato locação comercial imoveis corporativos em São Paulo prédio para investir investir em lajes corporativas galpão a venda galpoes para locação vantagens do Sale Leaseback lajes corporativas à venda imovel comercial para alugar contrato de locação comercial encontrar investidor imóvel corporativo imóveis para investimento em são paulo galpão com renda imobiliarias imovel comercial alugar lajes corporativas investidor em Sao Paulo investimento em imoveis investidores Sao Paulo prédio alugado imóveis comerciais para investimento laje corporativa a venda investimento imobiliário prédio comercial a venda sp diminuir locação varejo galpões com renda imóvel comercial locação construcao com renda imovel com renda a venda compro imóvel com renda gestão contrato aluguel imoveis com renda investidores imobiliários aplicação em imoveis investir em prédios imóvel comercial para investimento compro imóvel para investimento comprar prédio imóvel para investir investimento em laje corporativa investimento em incorporacao prédio para locação investir em laje corporativa aplicação em imovel imovel comercial para alugar investimento em imovel comprar imóvel para investimento empresa investidores especialista gestão contrato investimento em indústria investidor patrimonialista sale and leaseback imóveis comerciais em São Paulo avaliacao imobiliaria imóvel para investir em São Paulo locação de imóvel comercialsale leaseback real estate terrenos industriais anhanguera procuro investidor imobiliário predio para investir representação contrato locação avaliação de ativos imobiliários valoração de imóveis a lei nº 8.245, de 1991 Administração de contratos administração de imoveis como funciona administração de imóveis e locação administração de imóveis passo a passo administração de locação de imóveis administração imobiliária agencia bancaria a venda com renda aquisição de imóveis areas para loteamento em parceria Building Consultancy carta pedindo desconto no aluguel carta proposta para redução valor do aluguel carta solicitando redução de aluguel carta de contraproposta de reajuste de aluguel casas para renda a venda zona leste sp casas para renda em osasco casas para renda zona norte sp casas para renda zona sul sp clube de investidores imobiliários como administrar aluguel de imoveis como alugar imovel para agencia bancaria como pedir desconto no aluguel como pedir redução de aluguel compradores imoveis comprar imovel ou investir dinheiro 2017 comprar sala comercial vale a pena comprar predio inteiro compro imovel alugado para banco compro imovel com renda condominio de galpões sp condominio logistico definição condomínios industriais conceito condomínios logísticos conceito condomínios logísticos no brasil Consultoria e Representação de Ocupantes consultoria imobiliária para ocupantes contrato de locação com clausula de venda do imovel contrato de sale and leaseback controle de recebimento de aluguel corretor de imoveis comerciais sp curso de administração imobiliaria presencial curso administração de imoveis desconto no aluguel de imoveis Escritório mobiliados escritorio mobiliado para alugar sp Escritorio Sao Paulo Mobiliado Escritórios mobiliados Facilities Management fii rentabilidade fiis como investir fundo imobiliario caixa fundo imobiliario itau fundo imobiliario rentabilidade fundos imobiliarios 2016 fundos imobiliarios bovespa fundos imobiliarios easynvest fundos imobiliarios mais rentaveis fundos imobiliarios o que é fundos imobiliarios tetzner galpão a venda em guarulhos galpão a venda sp galpão a venda zona sul sp galpão industrial construção galpao a venda zona norte sp galpão para alugar em sp galpão para alugar guarulhos galpão para alugar na zona norte galpão para alugar zona sul galpões industriais para locação galpões usados a venda galpoes a venda em cotia galpoes a venda na zona leste galpões para alugar zona leste galpões para alugar zona oeste gerenciamento de aluguel gerenciamento de carteira imobiliaria gerenciamento de imóveis, Gerenciamento de locaçao Gerenciamento de Portifólios Imobiliários gerenciamento de serviços de infraestrutura gestão imobiliária o que é imobiliarias sp imoveis comerciais a venda com renda em sp imoveis comerciais a venda em sp imoveis comerciais alugados a venda imoveis comerciais para alugar em sp imoveis comerciais a venda em sp imoveis de renda contabilidade imoveis comerciais para alugar em sp zona oeste imoveis comerciais para alugar em sp zona sul imoveis para renda ativo ou passivo imovel alugado a venda imovel com renda a venda sp imovel comercial para alugar zona leste imovel comercial para alugar zona norte sp imovel com renda alugado para banco imovel comercial locado a venda imovel comercial a venda em sp imovel locado para banco a venda investidores imobiliarios chineses investidores imobiliarios estrangeiros investidores de imoveis sp investidores em imoveis na planta investidores que compram imoveis investimento em imoveis comerciais investir em imoveis para alugar vale a pena investir em imóveis para alugar é um bom negócio investir em imovel para alugar laje corporativa faria lima laje corporativa faria lima lajes corporativas faria lima lease back conceito leaseback contabilidade leaseback contabilização leaseback o que é leaseback significado loja para alugar em sp lojas a venda em shopping lojas a venda em sp zona leste lojas a venda sp lotes industriais lotes a venda em sp melhores fundos imobiliarios mercado de lajes corporativas venda imóvel locado o locador pode vender o imovel antes do termino do contrato o que são lajes corporativas parceria loteamento porcentagem ponto comercial a venda sp ponto comercial para alugar sp zona norte ponto comercial ponto comercial para alugar pontos comerciais para alugar sp prazo para desocupar imóvel vendido predio alugado predio com inquilino predio rendendo aluguel prédio rendendo aluguel predio unico ocupante alugado predio único ocupante com renda predio únicoocupante com renda predio alugado para banco a venda predio comercial para alugar predio comercial projeto predio comercial a venda zona leste predio residencial a venda em sp predios comerciais a venda com renda procuro area para loteamento procuro escritorio alugado procuro imovel alugado procuro imovel com aluguel procuro loja alugada proposta de redução de aluguel comercial ranking fii renegociaçao contrato comercial renegociaçao contrato de aluguel renegociaçao contrato de loja sala comercial para alugar ribeirao preto sala comercial para alugar zona leste sala comercial para alugar zona norte sala comercial venda sp sala comercial aluguel sala comercial para alugar sala comercial para alugar zona leste sala comercial para alugar zona norte salão comercial para alugar zona leste salão comercial para alugar zona norte salão comercial para alugar zona sul sp salão comercial para alugar salão comercial a venda sp salão para alugar zona norte salão para alugar zona sul sp salas comerciais a vendaem sp salas comerciais a venda em sp zona leste salas comerciais a venda em sp zona sul salas comerciais a venda no centro de sp salas comerciais para alugar em sp salas comerciais para alugar em sp centro salas comerciais para alugar em sp zona sul salas comerciais para alugar no tatuapé salas comerciais para alugar zona oeste salas comerciais para alugar zona oeste sp sale leaseback no brasil sale lease back conceito solicitação de redução de preço terceirização de ativos imobiliários terceirização imobiliária terreno a venda em guarulhos Terreno industrial para compra terreno industrial para compra terreno industrial campinas terreno interior SP Terreno para construçao de comercio Terrenos industriais terrenos industriais a venda em sp terrenos a venda area industrial terrenos a venda em sp zona leste terrenos a venda em sp zona norte terrenos a venda em sp zona sul terrenos a venda interior sp vale a pena vender imovel e aplicar o dinheiro vale a pena comprar imovel 2017 venda de imóvel locadovenda do imóvel durante a locação vendo predio locado para banco viver de aluguel de casas viver de renda aluguel